

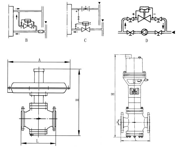
産品概述:
ZZC和(hé)ZZV自(zì)力式差(微)壓調節閥是一(yī)種不需要外加能源的(de)執行器産品。可(kě)用于公稱壓力PN0.1,PN1.0。差(微)壓均可(kě)分段調節。從 50mm.W.C至0.1MPa。其用途十分廣泛,可(kě)用于工業燃燒爐系統,控制兩種物料,如(rú)煤氣、空氣流量配比,以達理(lǐ)想燃燒。用于氫冷發電機組密封油系 統,控制密封油與氫氣間壓力差,以确保可(kě)靠密封。當差壓閥的(de)低(dī)壓端通大氣即為(wèi)微壓閥(差壓閥負壓,端壓,力為(wèi)零)。
産品特點:
1、無需停止生産即可(kě)進行設定值的(de)調整;
2、無填料,閥杆上、下活動時不存在磨擦,上密封絕對可(kě)靠;
3、執行機構敏感元件極為(wèi)靈敏,極微小的(de)壓力變化會被感測出來;
4、閥體為(wèi)四通形式,因而K、B型可(kě)通用一(yī)種閥體。
技術參數:◆主要技術參數和(hé)性能指标
|
公稱通徑 DN(mm) |
20 |
25 |
32 |
40 |
50 |
65 |
80 |
100 |
|
|
額定流量 系數 Kv |
ZZCP/ZZVP |
8 |
11 |
20 |
32 |
50 |
80 |
100 |
160 |
|
ZZCN |
53 |
83 |
|||||||
|
額定行程 (mm) |
6 |
8 |
10 |
15 |
20 |
||||
|
公稱壓力 PN(MPa) |
0.10 1.0 |
||||||||
|
差壓調節範圍 (kPa) |
0.5 ~ 5.5 5 ~ 10 9 ~ 14 13 ~ 19 18 ~ 24 22 ~ 28 26 ~ 33 31 ~ 38 36 ~ 44 42 ~ 51 49 ~ 58 56 ~ 66 64 ~ 78 76 ~ 90 8 ~ 100 |
||||||||
|
介質溫度 ( ℃ ) |
≤ 80 |
||||||||
|
調節精度 ( % ) |
≤ 10 |
||||||||
|
允許洩漏 量 (l/h) |
ZZCP/ZZVP |
10-4 X 閥額定容量 ( Ⅳ 級 ) |
|||||||
|
ZZCN |
5X10-3 X 閥額定容量 ( II 級 ) |
||||||||
注:
1、ZZCP/ZZVP公稱壓力為(wèi)0.10MPa,ZZCN為(wèi)1.0MPa
2、ZZCN差壓調節範圍為(wèi)36~44…88~100kPa
規格重量:
◆外形尺寸及重量 單位:mm
|
DN |
20 |
25 |
32 |
40 |
50 |
65 |
80 |
100 |
|
|
A |
308 |
394 |
308 |
394 |
308 |
394 |
394 |
394 |
|
|
H |
ZZCP/ZZVP |
376 |
465 |
365 |
445 |
445 |
490 |
490 |
510 |
|
ZZCN |
536 |
536 |
|||||||
|
L |
ZZCP/ZZVP |
150 |
160 |
180 |
200 |
230 |
290 |
310 |
350 |
|
ZZCN |
222 |
222 |
|||||||
|
重量 G(Kg) |
12 |
13 |
15 |
17 |
20 |
28 |
38 |
43 |
|
|
導壓管螺紋接頭 |
M16X1.5 |
||||||||