

一(yī)、SD363H焊接雙向壓蝶閥産品概述
我公司引進能夠國外先進技術的(de)基礎上,采用精密的(de)J形彈性密封圈和(hé)三偏心多層次金屬硬密封結構,被廣泛用于治金 、電力、石油化工、以及給排水和(hé)市政建設等工業管道(dào)上,作調節流量和(hé)載斷流體使用。該閥采用三偏心結構,閥座與碟闆密封面均采用不同硬度和(hé)不鏽鋼制作,具有良好的(de)耐腐蝕性,使用壽命長(cháng),本閥軍郵雙向密封功能,産品符合國家GB/T13927-92閥門壓力試驗标準。
二、SD363H焊接雙向壓蝶閥産品特點
1、采用三偏心蝶閥堪稱頂尖過程閥門,此設計使閥門為(wèi)高(gāo)溫、高(gāo)壓、防火應用中氣泡級密封的(de)理(lǐ)想硬密封蝶閥。
2、由于采用焊接結構,使閥門與管道(dào)平面達到永久性的(de)零洩漏。
3、此閥無法蘭,對管道(dào)和(hé)保溫包紮帶來了很大的(de)方便和(hé)美觀。
三、SD363H焊接雙向壓蝶閥主要技術參數
| 公稱通徑DN(mm) | DN100~1200mm、NPS4"~48" |
| 公稱壓力PN(Mpa) | 強度試驗(1.5×PN)密封試驗(1.1×PN) |
| 适用溫度 | 碳鋼:-29℃~425℃ 不鏽鋼:-40℃~650℃ |
| 适用介質 | 水、蒸汽、熱水、油品 |
| 驅動方式 | 蝸輪傳動、電動、氣動、液動 |
| 壓力等級 | ANSI 150Lb磅級/PN25 |
| 焊接标準 | GB12224、ANSI B16、25、DIN2559 |
SD363H焊接雙向壓蝶閥主要零部件材料
| 零件名稱 | 材料 |
| 閥體 | 碳鋼、不鏽鋼、鉻鋁鋼 |
| 蝶闆 | 碳鋼、合金鋼、不鏽鋼 |
| 閥座 | 3不鏽鋼、钴基硬質合金 |
| 軸套 | 不鏽鋼 |
| 閥杆 | 不鏽鋼、特殊材料 |
| 填料 | 柔性石墨 |
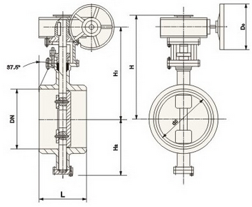
D363H/663H/963H/-10/16/25/40/C、P、RSD363H焊接雙向壓蝶閥連接尺寸
| 公稱通經 | 主要尺寸 | 公稱通經 | 主要尺寸 | ||||||
| in | DN(mm) | L | H1 | H | in | DN(mm) | L | H1 | H |
| 4 | 100 | 190 | 270 | 370 | 18 | 450 | 330 | 535 | 820 |
| 5 | 125 | 200 | 295 | 390 | 20 | 500 | 350 | 560 | 900 |
| 6 | 150 | 210 | 308 | 416 | 24 | 600 | 390 | 630 | 980 |
| 8 | 200 | 230 | 370 | 530 | 28 | 700 | 430 | 670 | 1100 |
| 10 | 250 | 250 | 450 | 580 | 32 | 800 | 470 | 800 | 1300 |
| 12 | 300 | 270 | 465 | 630 | 36 | 900 | 510 | 850 | 1370 |
| 14 | 350 | 290 | 475 | 595 | 40 | 1000 | 550 | 880 | 1480 |
| 16 | 400 | 310 | 505 | 755 | 48 | 1200 | 630 | 1000 | 1690 |